
Ce projet urbain s’inscrit dans les limites d’un site de 125 000 m2 à sur la rive opposée au centre-ville de Glasgow. Cet ancien quartier manufacturier, datant de la révolution industrielle, est désaffecté depuis la fin des années 1970. Ce projet tente donc d’offrir une nouvelle vocation mixte, axé sur les nouvelles technologies dans une réflexion sur la conception paramétrique tenant compte des données urbaines et environnementales actuelles et projetées. Sur la base de ces analyses, la forme de l’ensemble s’adapte selon les flux de circulation et de transport, l’ensoleillement et le bruit, en vue d’obtenir un choix d’options optimales.
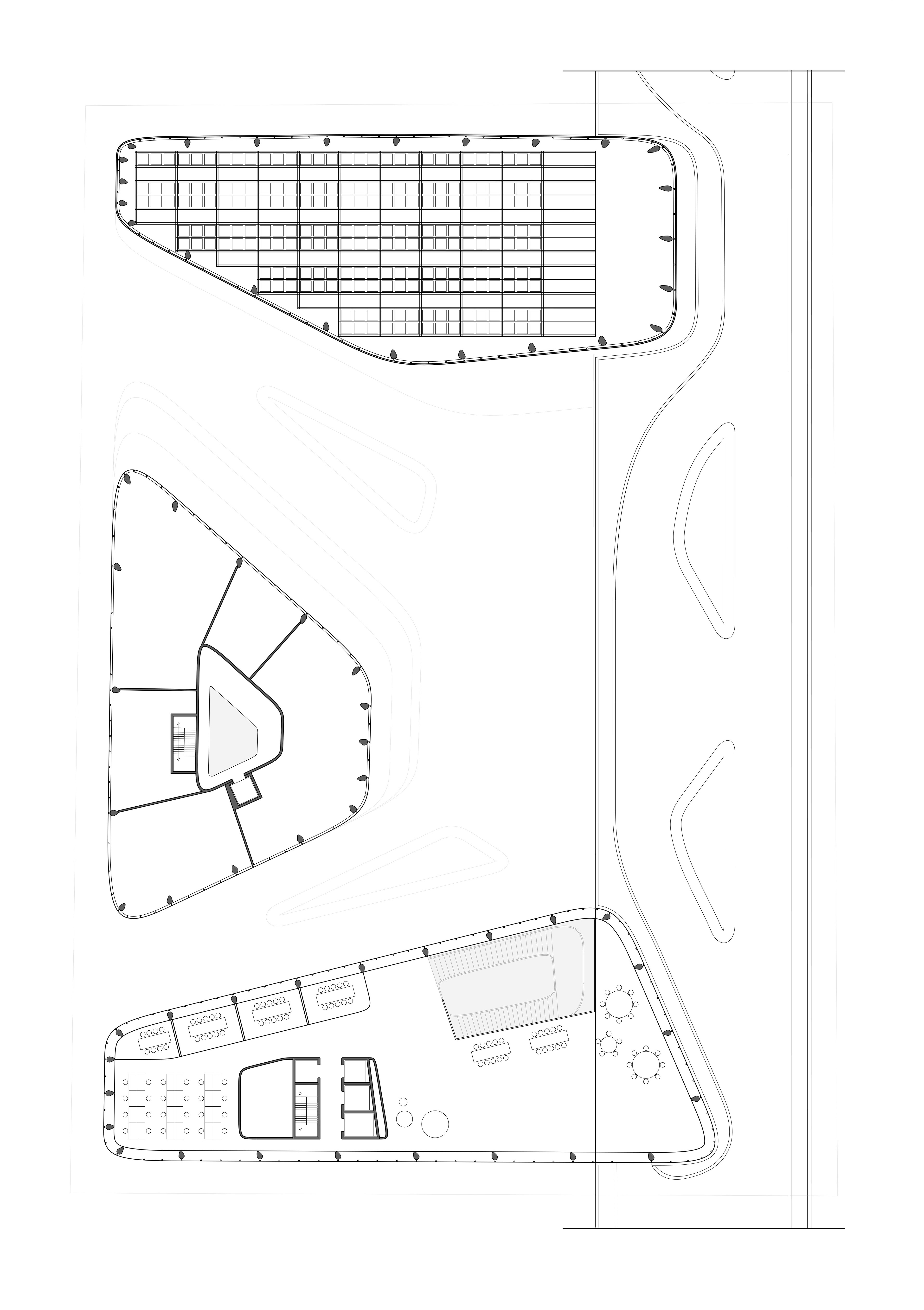
Le projet est destiné à accueillir les fonctions administratives, de recherche et de développement d’une grande entreprise technologique. À ceci s’ajoute des logements, des espaces collectifs et un centre de distribution automatisée. L’ensemble des fonctions de production et de prototypage sont regroupées dans un cadre structurant qui permet le déplacement et l’échange des matériaux et produits finis sur l’ensemble du site de façon autonome. À ce réseau automatisé se greffent des centres de logistique assurant la réception et le stockage des matériaux bruts ainsi que l’envoi des produits finis par drones. Les typologies de bureau et de centre de recherche s’y raccordent aussi afin de favoriser les échanges entre la conception et la production. À l’opposé, les immeubles de logements et les équipements collectifs s’en éloignent tout en conservant une relation visuelle avec ces espaces automatisés.
En collaboration avec Sophie Guilleux

Coupe logements

Coupe centre de recherche

Coupe centre logistique

Plan rez-de-chaussée

Plan 3e étage

Plan 5e étage

Plan 7e étage

